Having a master bedroom with bath and walk in closet is now being a lifestyle. Most people love it as it has more than luxury; it provides comfort, pleasure, and efficiency.
If we have this kind of master bedroom, it means that we have three primary spaces in one room. So, we do not need to see the wardrobe, shoe rack, and soon when we are lying on the bed as they are in the closet room area.
As a replacement, we can set the television or other things that we love to see before we sleep in our bedroom. Indeed, the bedroom with bath and walk in closet gives us a chance to increase our sleeping quality to a better level.
If right now you have a project plan to build a new sleeping area to do a major renovation to the old one, it would be helpful for you to get inspired from master bedroom plans with bath and walk in closet. For you to know, those are the things that we will provide to you in this post.
In the following, we list some ideas that have unique and inspiring values. Hopefully, these will help you in creating the master bedroom plan that is suitable for the design of your house.
- 20’ x 20’ Master Bedroom Extension Floor Plan
- 24’ x 15’ Master Suite Addition Floor Plan
- Master Bedroom Floor with Walk-in Closets for Him and Her
- The Master Bedroom Plan of a Unique-Shaped Property
- Apartment Master Bedroom Floor Plan with Walk-in Closet and Bath
- Complete Master Bedroom Plan for the Second Floor
- A Spacious Master Bedroom Plan in a Luxurious Residence
20’ x 20’ Master Bedroom Extension Floor Plan

For the first idea, let us take a look at this square master bedroom plan with the size of 20’ x 20’. Originally, it is a part of a home extension project.
It means the room area is a new part built and connected to the existing house. It also means an idea like this is good to follow if you have a plan to make your home bigger by moving the master bedroom to the new place. This way, you can use the old room or remodel it for something else.
The fact that this floor plan is an extension design is not the only interesting part that you must know. Let us take a closer look at the detail of the master bedroom itself.
The sleeping area is more than enough to place a king-size bed with bedside tables as the pairing. As you can see, there is also a TV set for personal entertainment in the room.
Other than those, the sleeping area still has some extra space to place some other elements. For example, the location near the window is suitable for creating a reading corner with a comfortable chair and a floor lamp.
Let us move to the bathroom of this master bedroom. It has complete features that can guarantee the comfort of the occupants. All the details that you can find in there including a toilet, a bathroom vanity with two sinks, a shower room, and a tub.
The thing that is interesting about this bathroom is that it has a door near the main entrance of the bedroom, making it easier for the occupants to enter it right when they enter the room. Besides, there is also a sliding door that connects it to the walk-in closet right next to it for ease in getting dressed right after taking a bath or a shower.
About the walk-in wardrobe area, the main entrance seems to be folding doors. These details are excellent because it is more space-efficient. For you to know, it looks like the design of this walk-in closet if for shared usage.
When you have this kind of wardrobe area, and you think that it is quite small, it seems excellent for you to consider the maximum usage of the vertical space in there. This way, you can store all your clothing items in there without any worry.
24’ x 15’ Master Suite Addition Floor Plan

This next idea is from a remodeling project of a house in which the homeowner wanted to add a master suite with full features in the form of a walk-in closet and a bath. At a glance, the floor plan that you see here looks quite similar to the one we talked about earlier. However, it is different since it has different sizing, detailing, and placement for the features.
If in the previous floor plan, the bath is the closest to the main entrance of the bedroom, in this idea, the walk-in closet is closer to the entry. Besides, the main entrance of the wardrobe area is a sliding door. It is another alternative to consider for a more efficient and space-friendly design.
The thing that you must always remember about this kind of master bedroom floor plan is that its shape makes it easy for you to attach it to the existed design of your house. The only thing that you must consider more is the size of your lot to see whether or not it is enough for the room addition.
Something like this is excellent because you do not have to renovate too many parts of the house to build a new master bedroom. You only need to think carefully about the most convenient location for the room addition.
Master Bedroom Floor with Walk-in Closets for Him and Her

The picture that you see here is the complete floor plan of the first floor of a modern house. Here, let’s focus more on the master bedroom area, as well as the bath and walk-in closet features that it has.
The bathroom design here looks quite the same. It has a tub, a shower room, and a 2-sink vanity. The thing that is slightly different here is that the toilet location, which is in a separated tiny place.
Some people prefer this kind of design because it gives them more convenience in using the water closet. Besides, it also allows the other occupant to use the other part of the bathroom even when the toilet is still in use.
Another difference that we all can see from this master bedroom plan is the design of the walk-in closet. In this case, we are not talking about the location or the size.
Here, we want you to focus more on the fact that there are two walk-in closets instead of just one in the master bedroom floor plan. Do you know what it means? It means that one of them is designed for her, and the other is for him.
As you may already know, the occupants of the master bedroom are usually a husband and a wife. If each of them gets a personal walk-in closet, it will be easier to arrange everything included in the wardrobe, including the clothing items and accessories. Besides, it will also easier to fulfill the personal taste and preference of each bedroom occupant without annoying the other.
If you have enough space in your lot for building a master bedroom for you and your loved one, it seems excellent for you to consider creating two walk-in closets instead of one.
The Master Bedroom Plan of a Unique-Shaped Property

Some properties have a unique shape because of space limitation or the location of the lot. For such land, you must create a custom floor plan to deal with all the exceptional value.
As an example, you can see the floor plan above. It is originally the design of a two-bedroom apartment offered by property management. Although so, you can still use the inspiration from it that we will discuss further even if your living place is a regular house built on a lot.
In the floor plan, you can see that the master bedroom has a somewhat different shape because of the placement of the living room next to it. Although so, it does not mean that the room cannot get all the features needed.
As you can see, this master bedroom floor plan comes with a walk-in closet. It seems there is a custom wardrobe included in there.
Another key feature is the bathroom. Although it does not have any tub, it still has some other complete appliances, including 2-sink vanity, a shower room, and a toilet.
Besides, there is also a different detail you can consider when designing a bathroom for a master bedroom like this. It is none other but the linen closet near the vanity.
For you who are not familiar with this name, it is a unique feature that you can include to store towels and some other bathroom necessities. This way, you can grab them quickly whenever you need them.
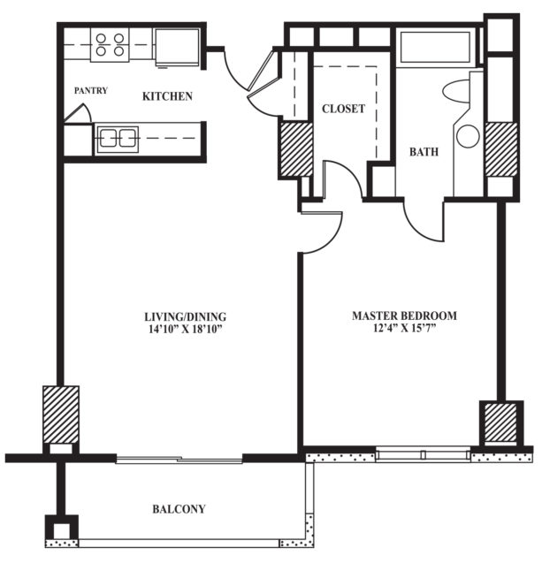
Apartment Master Bedroom Floor Plan with Walk-in Closet and Bath

The floor plan that you see here shows the full design of a one-bedroom apartment in a retirement community. While it can be a source of inspiration for you to build a small living place, you can also use the details in it separately. The example situation is when you want to design a master bedroom.
Let us focus more on the sleeping area of this apartment. The first inspiring detail is in the walk-in closet and bathroom design. This idea is excellent to choose when you want both rooms to be entirely separated from one another by a wall between them. As you can see, no door connects both areas.
One thing that you need to give concern in a master bedroom floor plan like this is the fact that although the room is not a small one, it is also not a big one. That is why you should carefully think about all the details and elements that you want to include in the design without reducing your comfort and life quality.
For example, you can see that the bathroom size here is not too big so that you can’t include a shower room in the design. The best solution that you can get here is choosing a tub that also comes with a shower feature because it has a space-friendly value inside.
Another example exists in the linen closet that takes some space from the wardrobe area. If you want the walk-in closet not to get any room reduction, you can just remove the linen from the design.
As a consequence, you should think about another alternative so you can still put the towels and other supplies in the bathroom area. One of the best suggestions that you can choose is the use of vertical storage, such as over-the-toilet cabinets or wall-mount shelves.
Complete Master Bedroom Plan for the Second Floor

A master bedroom is not only suitable to build on the first floor of the house. If, by any chance, you have a limited lot and you must create a living place with three bedrooms, you can build your room on the second floor as done in the plan of a small log house shown in the picture below.
On the first floor of this residence, there are two bedrooms, a shared bathroom, a kitchen, dining, and a living room. On the other hand, the use of the second-floor area is focused more on the master bedroom and a family room.
If we talk about the size, this sleeping area is larger than the ones located below. Besides the fact that it belongs to the parents, the size of the room is also reasonable because it has full features included, such as the walk-in closet and the private bathroom.
The wardrobe area is quite spacious, with space-friendly folded doors as the entrance. The size is enough to store all the clothing necessities of both of the room occupants.
The master bathroom is ample too. The proof is that it has full features, such as the shower room with a door, a tub, a toilet, a linen closet, and a two-sink bathroom vanity.
A Spacious Master Bedroom Plan in a Luxurious Residence

The last but not least inspiring master bedroom plan that we want you to take a look at as a source of an idea is this one. It belongs to a luxurious house with six different areas, including the lower level, ground level, second floor, third floor, fourth floor, and rooftop.
The master bedroom of the house is on the third floor. The size it has is enormous because almost the entire space in the level is dedicated to the suite. Therefore, an inspiration like this is more suitable to follow when you have ample space to build the house.
Every detail that we can see in this master bedroom floor plan is a guarantee for convenient, luxurious living. Let us start with the sleeping room.
It is the area that you will directly see when entering the master bedroom suite. The size of it is so large that you can place not only a bed with the biggest size but also some other features that can support your comfort in the private chamber. In the floor plan, the example shown is a round chair and a floor lamp that seems to create a reading corner.
Next to the sleeping area, there is a large walk-in closet, which also functions as a dressing room. Next to it, there is an ample bathroom area with complete features.
In the largest area of the bathroom, there is a round tub, a double-sink vanity, and a quite large linen closet. On the other side, there is a small room with a door with a toilet bidet in it. Next to it is a shower room with a door. It does not consist of a showering area only but also a sauna.
The last but not least detail in the master bathroom floor plan is another walk-in closet in the corner. This part adds even more space for storing the clothing items of the room’s occupants.
Closing
Those are the seven inspiring master bedroom plans with bath and walk in closet that we can share with you. Each of them is a real part of a building project, which means that there is a building made based on the design in it.
Each of the floor plans that we share in this article also has a different uniqueness that you can use as a source of inspiration. Hopefully, you can use it to gain some ideas for your next master bedroom building or remodeling project.





Leave a Reply
View Comments